+7 (499) 403-11-29
msk@vevanta.com
Москва, ул. Бутлерова д. 17, офис 5137
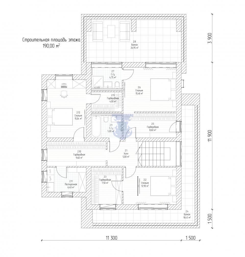
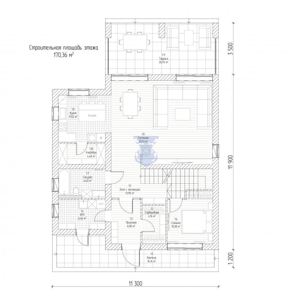
Цена: 37 125 408 руб.
Площадь: 196.83 м2
Терасса: 26.95 м2
Крыльцо: 16.14 м2
Размеры: 10.5х16.6
Комнат: 4
С\У: 3