+7 (499) 403-11-29
msk@vevanta.com
Москва, ул. Бутлерова д. 17, офис 5137
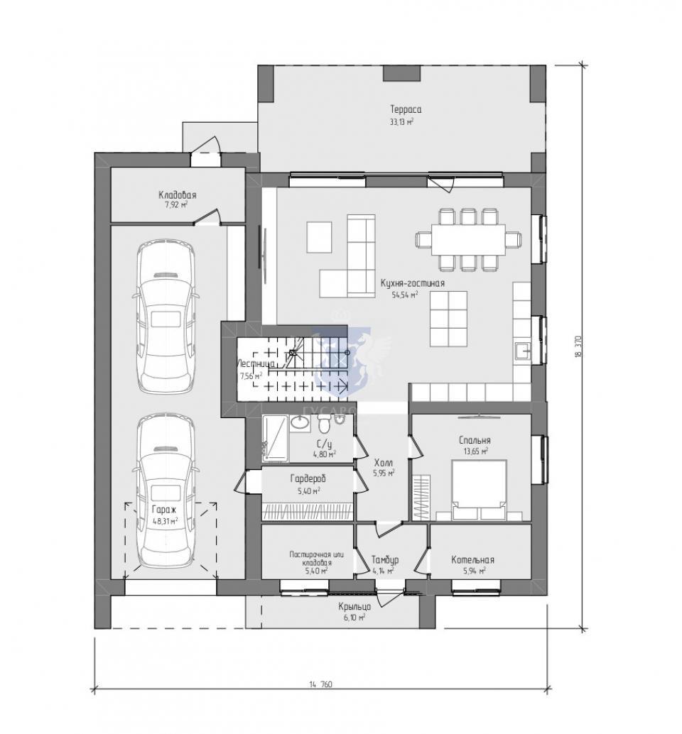
Цена: 49 775 825 руб.
Площадь: 263.90 м2
Терасса: 31.13 м2
Крыльцо: 6.10 м2
Размеры: 14х8
Комнат: 4
С\У: 3